Design and project management – Anfield Road
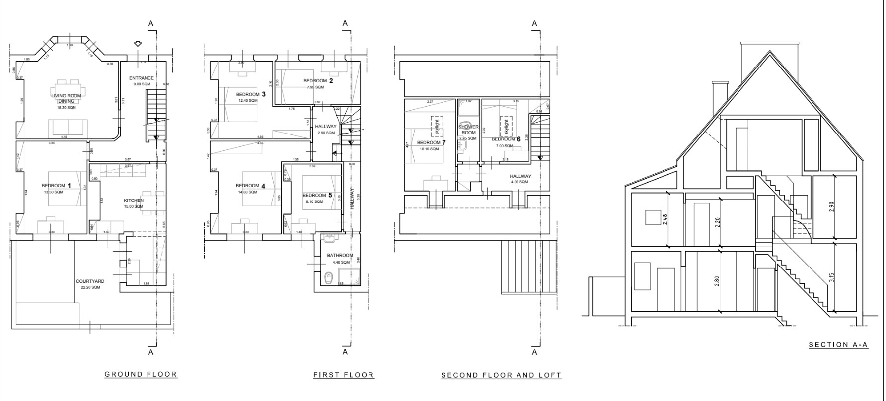
Description: Originally this was a 6 bedroomed middle terrace property, in a poor state of repair requiring a full renovation throughout. We could see the potential this property had and did not want to rush into a standard refurbishment. So, we looked closely at the area, the size of the property and the profitability potential and eventually we suggested HMO conversion to the client. This excited them and they were happy to listen to our suggestion further; together we worked on creating a design which would make the most of the excellent space the property has to offer, whilst planning bright and modern living accommodation throughout. The design comprised 7 bedrooms along with communal living, kitchen, dining and bathroom areas. Once plans were completed and approved, our construction team got to work immediately. We were confident that the end result would be fantastic, so we monitored the project closely making sure works were going to plan.
Finally – the vision we created for our client came to life, and it is safe to say they were blown away.
The before and after images speak for themselves, but here at Mamilla we want to make it clear how much passion and enthusiasm goes into every single project – whether it be a HMO conversion like this, a small family home or a luxury estate; We always put our all into every single one!
- WE DID REFURBISHMENT
- CATEGORY RESIDENTIAL







