Design & Project Management – Claude Road
Description: This project has got to be one of the most aesthetically pleasing that we have created. In the past, we have worked on several short-term let opportunities – in these cases, not only would we be involved in the architecture and design side of things, but our designer would also dress these homes professionally in readiness for immediate occupation. Claude Road is by far the most beautiful example of this.
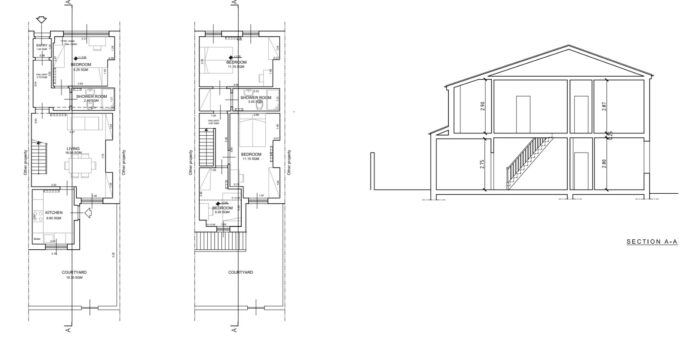
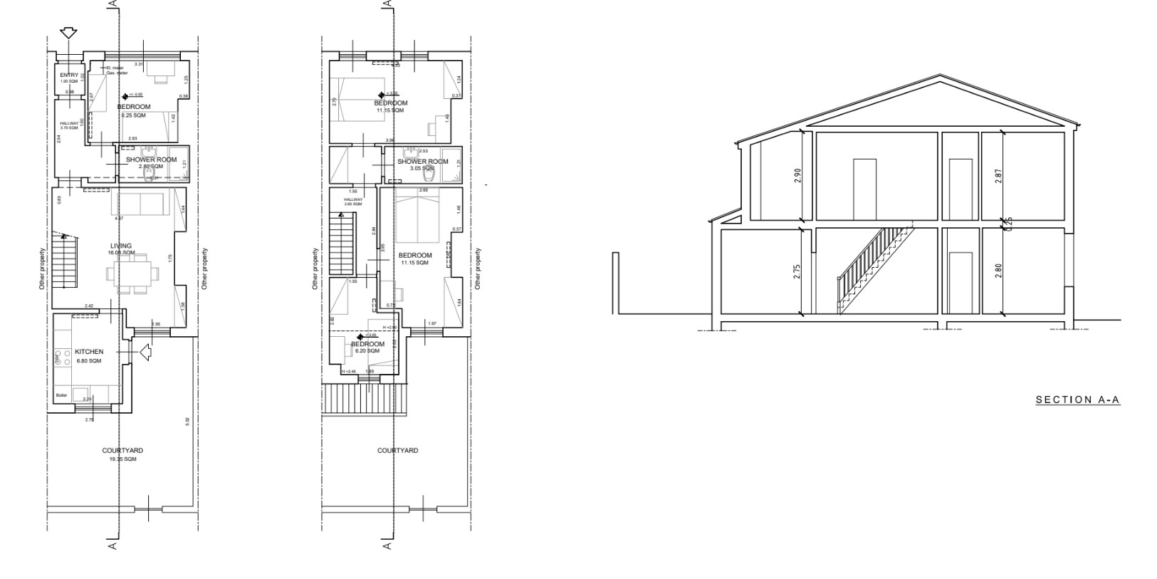
We took this project on as 2-bedroom middle terrace house which needed a full renovation throughout. Due to the property being within close proximity to Liverpool Football Club, it came to us that short-term letting would be a good option. Not only would it maximise on rental potential, but it would bring something unique to the area and hopefully encourage more landlords to consider a similar option.
This gave us the opportunity to create something different to our usual chic, clean style. After plenty of vision board sessions, our designer came up with bright and bold colour schemes, with the whole home having a modern-day vintage feel throughout. Every finishing touch was carefully thought of, making sure it was all in keeping with the design. From the sofa to the coffee table to the candlesticks – everything was thought through meticulously!
We are extremely proud of this project as it was something completely different for us to work on and is an excellent example of our versatility. We are always open minded – of course, we have our signature look which you will find throughout plenty of our projects, but if we are approached with the opportunity to make something totally out of the ordinary, then we will put our heart and soul into making sure it really is something special!
- WE DID REFURBISHMENT
- CATEGORY RESIDENTIAL









