New Build – Design & Project Management – King Street
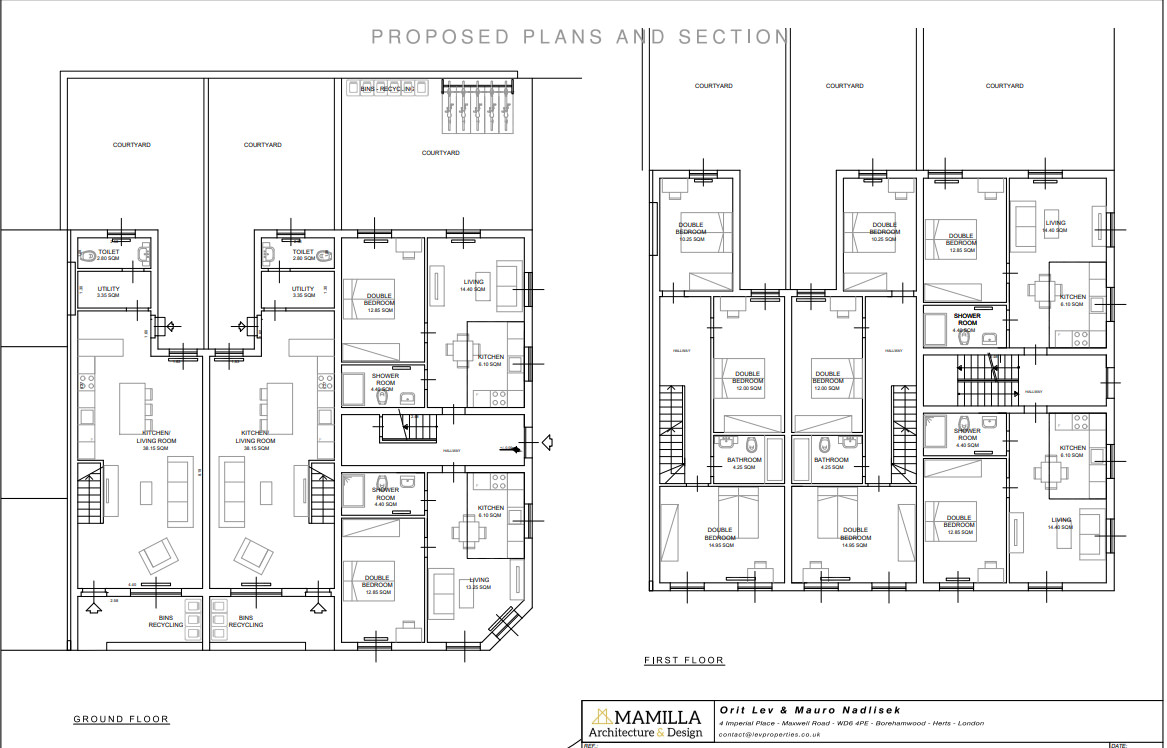
Description: Our client purchased this corner plot of land, which was previously occupied by a building that had been demolished due to a danger notice. We were careful to provide our best and honest advice to make sure the client took full advantage of such a large space, maximising on the property itself but also profitability. After careful consideration, planning permission was submitted and received for the erection of two 5 bedroomed houses, along with an apartment block comprising 6 units. Safe to say our client was thrilled, and everyone involved was extremely excited to get started on such a large build.
This sizeable project is going to be specially designed to externally fit in with the surrounding buildings, making sure it sits attractively within the area, whilst internally we will ensure it is in-keeping with our signature luxury style. Our team will work closely with the local authority and relevant engineers to ensure the new build is completed in line with all building regulations.
Construction is due to commence in 2021 and we cannot wait to show the end result!
- WE DID NEW BUILD - DESIGN & PROJECT MANAGE
- CATEGORY RESIDENTIAL




