Design & Project Management – Woodside Grove
Description: This amazing property is one of the most complex, high quality projects we have worked on. Originally, this was a 3 bedroomed detached property in a desirable area of North London, which had been neglected for many years and was in a poor condition. Our client wanted to create a beautiful, elegant and comfortable family home with a contemporary edge.
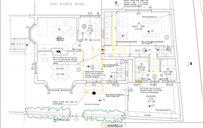
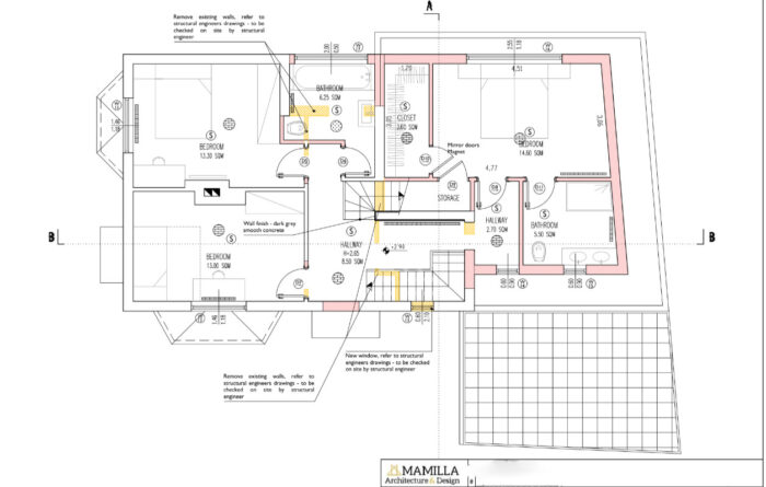
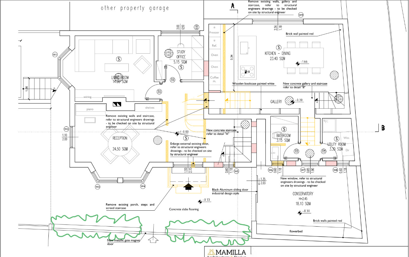
They purchased the property, and our design team got to work straight away – they created a design to include roof elevation/loft conversion, garage conversion to kitchen, and comprise 5 bedrooms, 3 bathrooms, 4 WC, utility room, reception room, living room, office and off-street parking. There were also special features such as a gymnasium with a specially created glass roof, and a gas fire garden centre piece.
This design was made to meet the highest end luxury standard, including a top end made-to-measure Italian kitchen, luxury bathroom fittings, modern fixtures throughout, electric gates and air conditioning. It is safe to say that our design team worked very closely with this project on a daily basis, to make sure it was finished to the highest standard that the client, and their home, truly deserved.
It was a complex task and involved a huge amount of planning; for example, having to work closely with architects, surveyors, and structural engineers to accommodate the construction of the extension, conversion and the bespoke glass roof. Once the design was finally completed, the client was astounded by the quality and accuracy of the work, and when a valuation was carried out, it was valued at much more than expected.
This project truly is a work of architectural and design art!
- WE DID REFURBISHMENT
- CATEGORY RESIDENTIAL















