Design And Project Manangement – York Villas
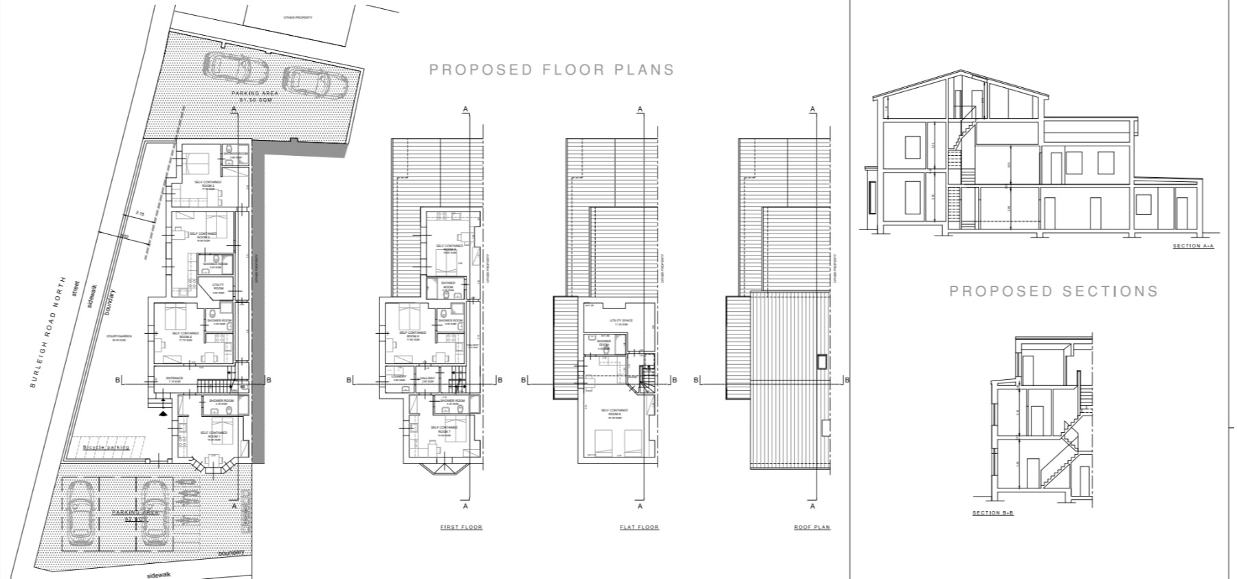
Description: Previously this was a corner plot property over three floors, comprising 4 bedrooms, which was in a derelict state of repair throughout. With the property being a 2-minute walk to the famous Anfield stadium, home to Liverpool Football Club, our design team wanted to make the most of this fantastic opportunity, and after careful consideration Planning Permission was submitted for 6 luxury self-contained apartments.
We had a vision to create a high-quality rental property, with special features throughout, making it incredibly unique to the area and therefore exceptionally attractive to visitors. Each apartment will have a chic, clean finish, along with stylish en-suites, and contemporary kitchen areas, which will allow visitors to enjoy a peaceful and relaxing space that we have carefully created.
Construction is under-way, and we are extremely excited to see our distinctive vision come to life.
- WE DID REFURBISHMENT
- CATEGORY RESIDENTIAL






