Extending a Terrace house in Borehamwood, Hertfordshire
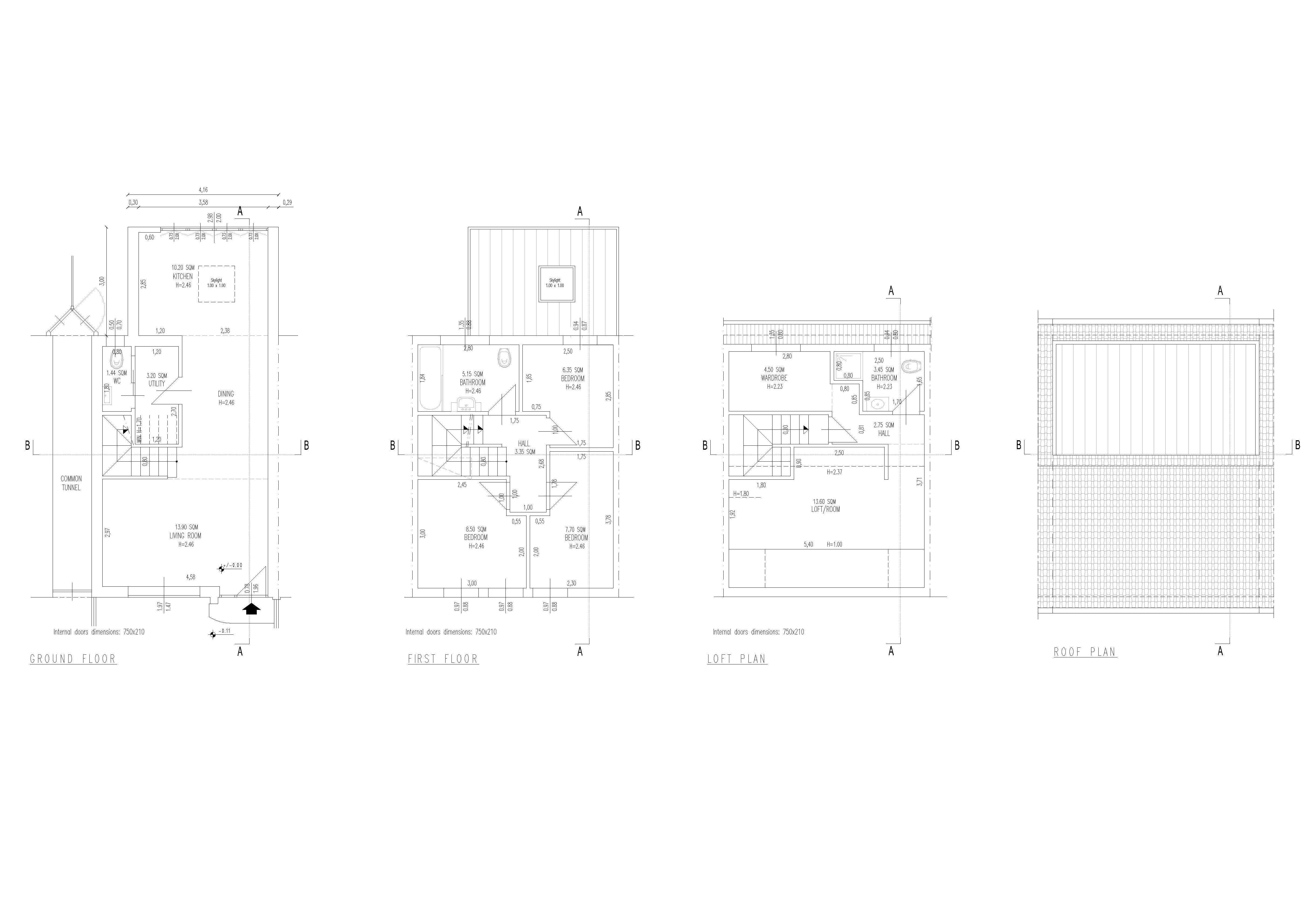
Description: The client requested to extend the house to the maximum permitted development space available, creating an open ground floor living, dining, kitchen area, adding a guest toilet and utility room.
3 double bedroom on the first floor and a loft conversion to include a master bedroom with it’s own en-suite shower room and a walk-in wardrobe.
The project included a survey, planning permission (lawful development), full specification plans for building control and complete interior design including kitchen & bathrooms design, choosing materials and schedule of works.
- WE DID EXTENSION
- CATEGORY RESIDENTIAL



