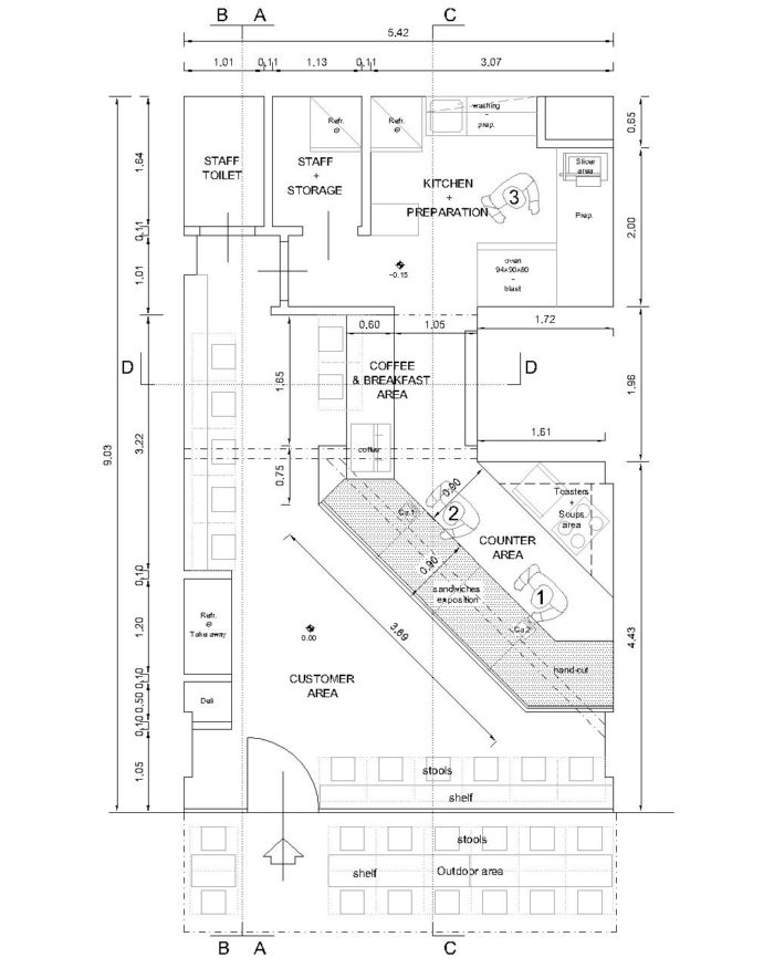
MOO! – Italian Freshness retail shop- 54 Baker Street, London UK
Description: Design, planning and construction of a new Italian, high-quality food take-away retail shop. The small 50 sq.m shop is meant to be a pilot design for a chain of fresh Italian take-away shops around London.
The concept of the design included the use of natural materials, farm style with a modern touch, council’s consent for a new shop front. Management of local contractors and building material suppliers.
- WE DID ARCHITECTURE & INTERIOR DESIGN
- CATEGORY COMMERCIAL




