2 x One Bedroom Flat, Warsaw
Description: New built project in the heart of Warsaw, expected to be completed in 2018.
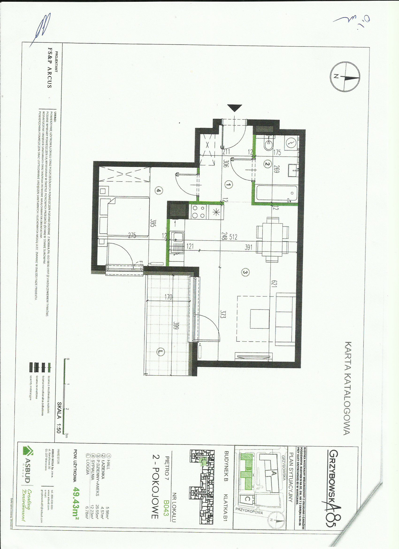
New build flats in Poland are sold in a shell condition and our client requested the design and fitting schedule to be ready for the local builders to work according to the specification.
The project includes: luxury kitchen and bathroom design, furniture layout to maximise the 50 sq.m space. Sourcing the finishing materials such as flooring, tiles, feature wall, colour scheme and soft furnishing such as made to measure curtains, built-in wardrobe & furniture.
- WE DID ARCHITECTURE & INTERIOR DESIGN
- CATEGORY COMMERCIAL


